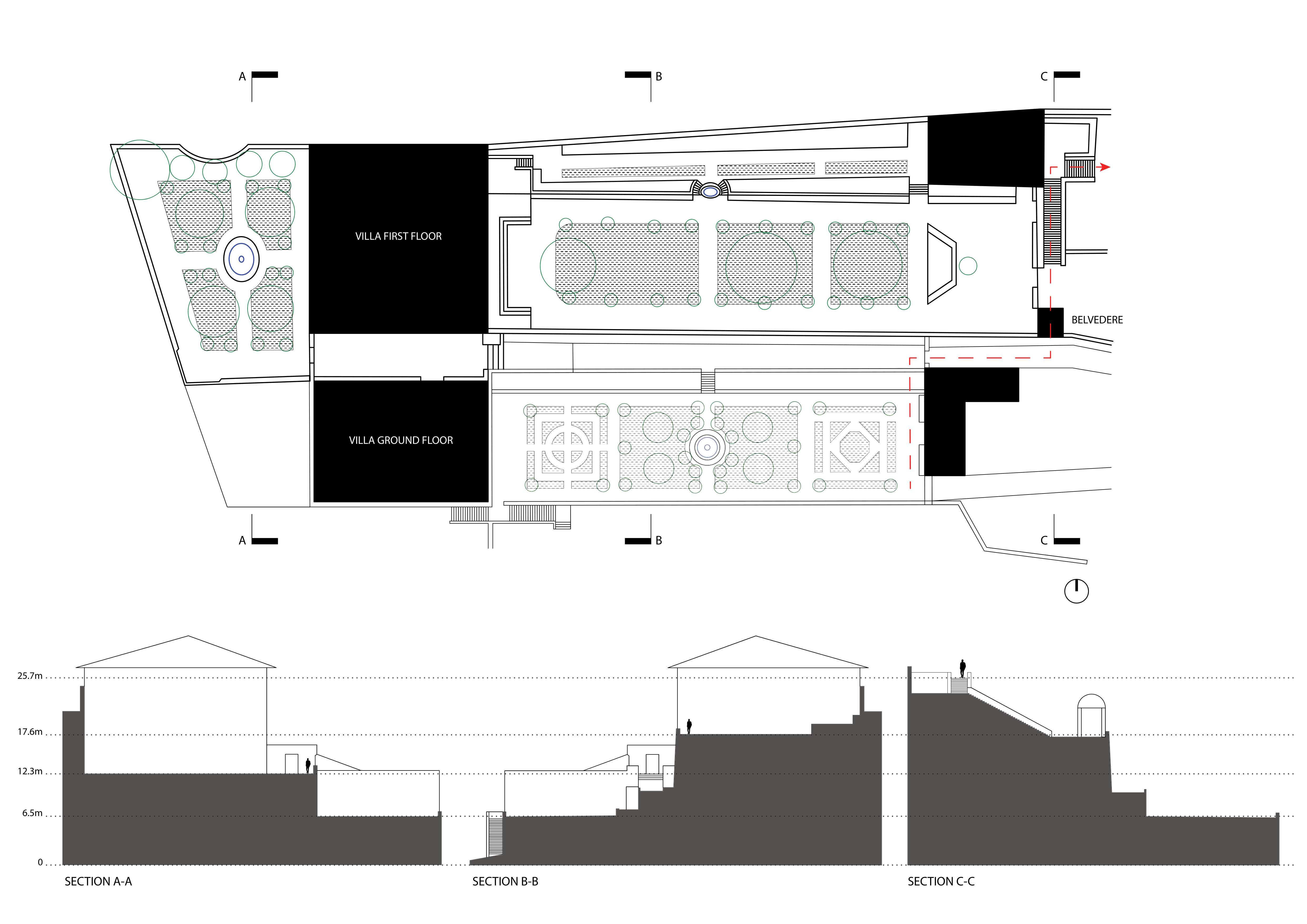
Villa Medici: Levels and Framing Florence

Analysis of Villa Medici, an Italian landscape garden. This was chosen due to the various levels on the site. Through digital reconstruction, the investigation was how these levels and the surrounding architectural features affect our perception of the view towards Florence.